850 Beech Street #214

San Diego, CA 92101

$ 389,900

Price

1

Beds

1

Baths

792 Sq. Ft.

$492 / Sq. Ft.

212 Days On Market

Favorite

Share

Have You Been Pre-Qualified? Start Now

Listing provided by agent Jean Paul Schwarz BRE# 01915341 at The Schwarz Group and Elisabeth Schwarz BRE# 01926325 at The Schwarz Group.

Last Updated: 7 days ago

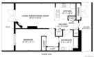
Discovery #214, this large unit is a one-bedroom and one-bath MOVE-IN ready. Designed with practicality in mind, the unit features no carpeting; instead, tile flooring extend throughout, offering both, a modern aesthetic and easy maintenance and bright Sherwin-Williams EMERALD new paint throughout. Step out onto your private patio, a generous outdoor retreat perfect for al fresco dining or simply unwinding after a day in the vibrant city or your furry friend open terrace. The convenience of one, underground secure parking dedicated spot and a dedicated storage further elevates the everyday experience, while the community exudes exclusivity. Ah, yes! Discovery is super dog friendly. Set in a high-rise that masterfully balances downtown energy with a tranquil, suburban feel of Cortez Hill, residents enjoy access to a full suite of resort-style amenities. From a heated rooftop pool and spa with sweeping city views to a state-of-the-art fitness center, steam room, dry sauna, and inviting cabanas, fire pits, dining areas for gatherings, every amenity is curated to enhance your lifestyle in one of San Diego’s most coveted locales. Cortez Hill has it all, Yoga Studio "The Little Yoga Studio", a personal training spot "Moe Fitness For All", Pilates Studio, Neighborhood Restaurant, Med Spa - nails salon "Anna Kara", Hair Salon "Bespoke Hair Salon", a Mini Mart, Coffee Shop and more. Join the incredible commUNITY of Cortez Hill. 8-minutes walk to everything; Little Italy, Gaslamp or Balboa Parlk. Drive to museum only 5 min drive to Balboa Park and 10 minutes to San Diego Airport !! Live in San Diego Downtown with a feeling of the Suburbs. Parking space located on P3 #47. Exclusive use of storage located on 2nd floor Storage Room #2. Exclusive use of yard its your own private outdoor patio.

Show More
Property Type Condominium
Year Built 2003
MLS # 250031202SD
Listing Type Pending
Heating Electric, Natural Gas, Forced Air
Cooling Central Air
Pool In Ground, Community, Lap
Laundry Electric Dryer Hookup, Gas Dryer Hookup
Parking Assigned, Gated

Payment Calculator

40% Complete (success)
80% Complete (danger)
20% Complete
80% Complete (danger)
60% Complete (warning)
Principal and Interest
Property Taxes
Homeowners' Insurance
HOA Dues
Mortgage Insurance
Image Calculator Icon Customize Calculations | Compare Mortgage Rates

Property Details for: 850 Beech Street #214

Interior Features

Bathroom Information
  • 1 full bath
Laundry Information
  • Electric Dryer Hookup
  • Gas Dryer Hookup
Fireplace Information
  • Living Room
Interior Features
  • Ceiling Fan(s)
Heating & Cooling
  • Central Air
  • Electric
  • Natural Gas
  • Forced Air

Parking / Garage, Multi-Unit Information, Location Details

Interior Information
  • Ceiling Fan(s)
Parking Information
  • Assigned
  • Gated

Exterior Features

Pool & Spa Information
  • In Ground
  • Community
  • Lap
  • Community

Property / Lot Details

Property Features
  • Courtyard
Lot Information
Property Information
  • Attached
  • Tax Parcel Number: 5340241719

Nearby Businesses

  • Grocery Stores
  • Drug Stores
  • Coffee Shops
  • Restaurants
  • Health & Medical
  • Fitness & Activity
  • Arts & Entertainment
  • Nightlife & Bars
    Browse all businesses in San Diego, CA, 92101

    Tour This Condo

    TUESDAY

    20

    JAN

    WEDNESDAY

    21

    JAN

    THURSDAY

    22

    JAN

    FRIDAY

    23

    JAN

    SATURDAY

    24

    JAN

    SUNDAY

    25

    JAN

    MONDAY

    26

    JAN

    Schedule A Tour
    Ryan Case, Licensed Realtor & Team Lead

    Ryan Case

    Licensed Realtor & Team Lead

    619-314-5333 Contact Ryan Case
    Listing provided by agent Jean Paul Schwarz BRE# 01915341 at The Schwarz Group and Elisabeth Schwarz BRE# 01926325 at The Schwarz Group.

    Last Updated: 7 days ago