9785 Mesa Springs Way #70

San Diego, CA 92126

$ 520,000

Price

2

Beds

2

Baths

1,041 Sq. Ft.

$500 / Sq. Ft.

286 Days On Market

Favorite

Share

Creekside Building

Have You Been Pre-Qualified? Start Now

Listing provided by agent David Zarella BRE# 01179291 at Dave Zarella & Associates.

Last Updated: 235 days ago

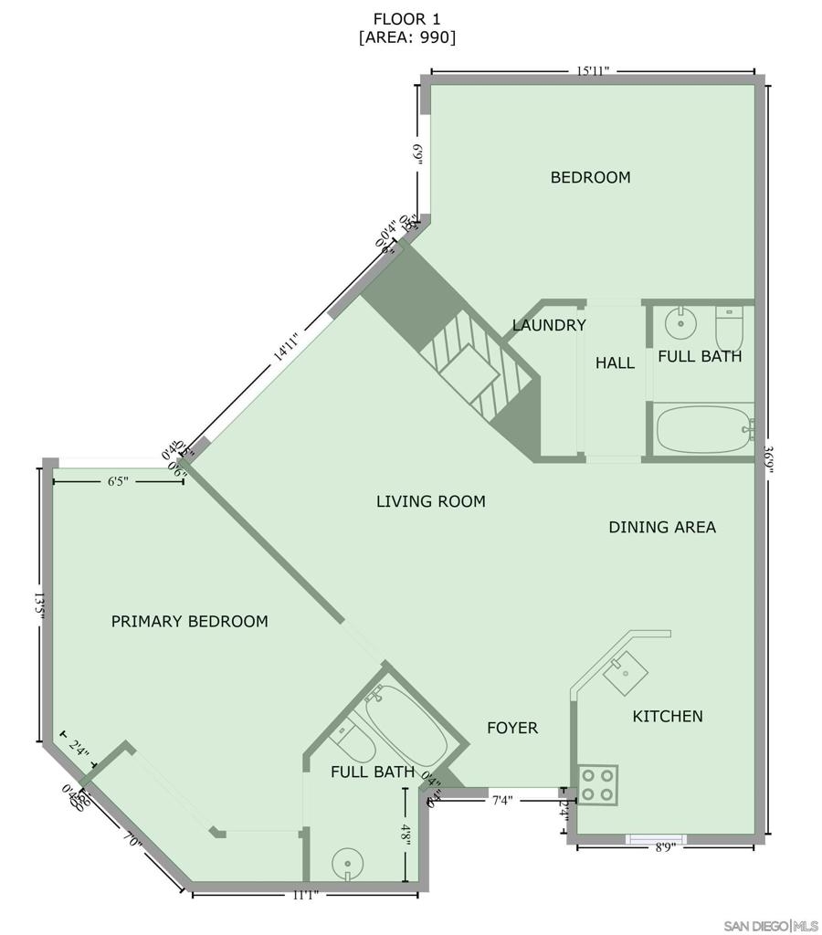
Seller is willing to help with buyer's closing costs or buy down. Fantastic Creekside condo featuring a top floor, end unit location. Parking for the unit includes a 37' deep 2-car tandem garage (G2) and a permit for an open parking space on first come basis. The unit has newer flooring, a stacked washer/dryer, central AC and a huge patio area. The floor-plans functions well as two primary bedroom and bath units. Super quiet location. Beautiful project landscaping and amenities. The building has been tented recently. All appliances convey.

Show More
Property Type Condominium
Lot Size 340,204 sq. ft.
Year Built 1985
MLS # 240027618SD
Listing Type Closed
Heating Natural Gas, Forced Air
Cooling Central Air
Pool Community
Laundry See Remarks
Parking Permit Required, Parking Space
Gated Community No

Payment Calculator

40% Complete (success)
80% Complete (danger)
20% Complete
80% Complete (danger)
60% Complete (warning)
Principal and Interest
Property Taxes
Homeowners' Insurance
HOA Dues
Mortgage Insurance
Image Calculator Icon Customize Calculations | Compare Mortgage Rates

Property Details for: 9785 Mesa Springs Way #70

Interior Features

Bathroom Information
  • 2 full baths
Laundry Information
  • See Remarks
Fireplace Information
  • Living Room
Heating & Cooling
  • Central Air
  • Natural Gas
  • Forced Air

Parking / Garage, Multi-Unit Information, Location Details

Parking Information
  • Permit Required
  • Parking Space
Community Features
  • Units in Complex (Total) 224

Exterior Features

Pool & Spa Information
  • Community
Building Information
  • Total Floors: 3

Property / Lot Details

Lot Information
  • Lot Size (Sq. Ft) 340,204
Property Information
  • Attached
  • Tax Parcel Number: 3413302540

Recently Sold Homes Near 9785 Mesa Springs Way #70

Nearby Businesses

  • Grocery Stores
  • Drug Stores
  • Coffee Shops
  • Restaurants
  • Health & Medical
  • Fitness & Activity
  • Arts & Entertainment
  • Nightlife & Bars
    Browse all businesses in Mira Mesa, CA, 92126

    Tour This Condo

    SUNDAY

    14

    DEC

    MONDAY

    15

    DEC

    TUESDAY

    16

    DEC

    WEDNESDAY

    17

    DEC

    THURSDAY

    18

    DEC

    FRIDAY

    19

    DEC

    SATURDAY

    20

    DEC

    Schedule A Tour
    Ryan Case, Licensed Realtor & Team Lead

    Ryan Case

    Licensed Realtor & Team Lead

    619-314-5333 Contact Ryan Case
    Listing provided by agent David Zarella BRE# 01179291 at Dave Zarella & Associates.

    Last Updated: 235 days ago

    Similar Condos For Sale

    For Sale

    $ 430,000

    1 beds, 1 baths, 772 sq.ft.

    9785 Mesa Springs Way #74 ...
    View All 1052 Condos