8446 Summerdale Road #A

San Diego, CA 92126

$ 599,819

Price

2

Beds

1.5

Baths

884 Sq. Ft.

$679 / Sq. Ft.

131 Days On Market

Favorite

Share

Concord Square Building

Have You Been Pre-Qualified? Start Now

Listing provided by agent Lindsay Herrell BRE# 01878670 at Compass.

Last Updated: 30 days ago

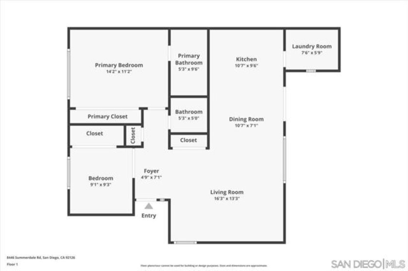
Price reduced!! Fully renovated 2-bedroom, single-level end unit home in a tranquil, parklike community with lush landscaping in the heart of Mira Mesa! This beautiful lower-level condo has no stairs and a large enclosed, private patio accessible through sliding glass doors. Step right out of the patio (through a convenient gate) or the front door to manicured lawns. Light & bright, this unit is completely upgraded & features newer LVP flooring, custom light fixtures, newer ceiling fans, a remodeled kitchen, updated bathrooms, a reconfigured interior laundry/utility closet, & AC. The kitchen is gorgeous with stainless steel appliances, quartz counters, & crisp white cabinetry. Lots of storage (including cabinets on both sides of the island, and an exterior closet next to the patio) & a great flow from the kitchen to the dining and living areas maximize the space. Both bedrooms are generous with exceptionally large and very tall closets. The primary bedroom is an ensuite with a beautiful spa-like bath featuring quartz counters, modern black fixtures, white cabinets, & a newer shower/tub combo. The half bath is also updated & accessible from the hallway. Continued in Supplemental Remarks... Laundry room off the kitchen with a full-sized stacked washer and dryer is a rare find in a condo community like this! A big coat closet in the entryway & exterior closet on the patio provide extra storage options. One covered parking space is included (#200). Residents enjoy access to the community pool, spa, & green spaces. Close to tons of restaurants, shops, & parks. Mira Mesa hosts wonderful annual community events that are just a short walk or drive away from this unit! A central San Diego location that is convenient to all! Don't miss this turnkey unit that is ideal for a primary residence or investment property in a robust & thriving community!

Show More
Property Type Condominium
Year Built 1981
MLS # 250031765SD
Listing Type Closed
Heating Natural Gas, Forced Air
Cooling Central Air
Pool Community
Laundry See Remarks, Individual Room, Inside
Parking Assigned, Carport, Covered, Off Street, Other
Gated Community No

Payment Calculator

40% Complete (success)
80% Complete (danger)
20% Complete
80% Complete (danger)
60% Complete (warning)
Principal and Interest
Property Taxes
Homeowners' Insurance
HOA Dues
Mortgage Insurance
Image Calculator Icon Customize Calculations | Compare Mortgage Rates

Property Details for: 8446 Summerdale Road #A

Interior Features

Bathroom Information
  • 1 full bath, 1 half bath
Laundry Information
  • See Remarks
  • Individual Room
  • Inside
Heating & Cooling
  • Central Air
  • Natural Gas
  • Forced Air

Parking / Garage, Multi-Unit Information, Location Details

Parking Information
  • Assigned
  • Carport
  • Covered
  • Off Street
  • Other
Community Features
  • Units in Complex (Total) 132

Exterior Features

Pool & Spa Information
  • Community
  • Community
Building Information
  • Total Floors: 2

Property / Lot Details

Property Features
  • Park/Greenbelt
  • See Remarks
  • Neighborhood
Lot Information
Property Information
  • Attached
  • Tax Parcel Number: 3111801760

Recently Sold Homes Near 8446 Summerdale Road #A

Nearby Businesses

  • Grocery Stores
  • Drug Stores
  • Coffee Shops
  • Restaurants
  • Health & Medical
  • Fitness & Activity
  • Arts & Entertainment
  • Nightlife & Bars
    Browse all businesses in Mira Mesa, CA, 92126

    Tour This Condo

    TUESDAY

    9

    DEC

    WEDNESDAY

    10

    DEC

    THURSDAY

    11

    DEC

    FRIDAY

    12

    DEC

    SATURDAY

    13

    DEC

    SUNDAY

    14

    DEC

    MONDAY

    15

    DEC

    Schedule A Tour
    Ryan Case, Licensed Realtor & Team Lead

    Ryan Case

    Licensed Realtor & Team Lead

    619-314-5333 Contact Ryan Case
    Listing provided by agent Lindsay Herrell BRE# 01878670 at Compass.

    Last Updated: 30 days ago

    Similar Condos For Sale

    For Sale

    $ 699,000

    2 beds, 2.5 baths, 1,146 sq.ft.

    8353 Summerdale Road #A ...
    View All 1092 Condos